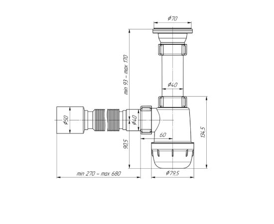
Сифон АНИ Пласт Грот A0110 — это современное и надёжное решение для организации слива воды в кухонной мойке. Модель оснащена гибкой трубой 40×50 мм, что обеспечивает простоту монтажа даже в ограниченном пространстве. Диаметр выпуска составляет 1 1/2 дюйма, а диаметр трубы — 40 мм, что делает этот сифон универсальным для большинства стандартных моек.
Характеристики:
• тип сифона: бутылочный, с увеличенным корпусом;
• выпуск: разборный, с нержавеющей решёткой;
• решётка слива: Ø70 мм при выпуске 1½;
• высота гидрозатвора: 60 мм;
• комплектуется гибкой трубой 40х50 мм для отвода в канализацию;
• отводы для стиральной и посудомоечной машины: нет;
• наличие перелива: нет;
• высота: 80–175 мм.
Характеристики:
• тип сифона: бутылочный, с увеличенным корпусом;
• выпуск: разборный, с нержавеющей решёткой;
• решётка слива: Ø70 мм при выпуске 1½;
• высота гидрозатвора: 60 мм;
• комплектуется гибкой трубой 40х50 мм для отвода в канализацию;
• отводы для стиральной и посудомоечной машины: нет;
• наличие перелива: нет;
• высота: 80–175 мм.
